Apartments
Studio Apartment - King Single Bed
Our Studio Apartments feature a fully equipped kitchenette, combined living and sleeping areas, so that you’re afforded all the space and privacy you need to make your stay as comfortable as possible. **All of our apartments are Non Smoking/Vaping for guest comfort**
Studio apartments feature:
- King single bed
- Built in wardrobe
- Kitchenette with gas cooktop
- Microwave
- Full Sized Fridge
- TV
- Reverse cycle air-conditioning
- Ensuite bathroom with shower and toilet
- Linen included
- Access to common room
- Access to free laundry facilities
- Complimentary WIFI
Queen Studio Apartment - Queen Bed
Our spacious Queen Studio Apartments feature a fully equipped kitchenette, combined living, dining and sleeping areas, so that you’re afforded all the space and privacy you need to make your stay as comfortable as possible. **All of our apartments are Non Smoking/Vaping for guest comfort**
Queen apartments feature:
- Queen sized bed with built in wardrobe
- Kitchenette with gas cooktop
- Microwave
- Full sized fridge
- Combined living & dining area
- TV
- Reverse cycle air-conditioning
- Ensuite bathroom with shower and toilet
- Linen included
- Access to common room
- Access to free laundry facilities
- Complimentary WIFI
Twin Studio Apartment - King Single Beds x 2
Our spacious open plan twin apartments come in a variety of configurations to suit your needs. Each of our twin studio apartments feature a fully equipped kitchenette, combined living, dining and sleeping areas, so that you're afforded all the space and privacy you need to make your stay as comfortable as possible. **All of our apartments are Non Smoking/Vaping for guest comfort**
Twin studio apartments feature:
- Two King Single Beds (may zip together to make up as a King bed)
- Built in wardrobe
- Kitchenette with gas cooktop
- Microwave
- Full Sized Fridge
- Combined living & dining area
- TV
- Reverse cycle air-conditioning
- Ensuite bathroom with shower and toilet
- Linen included
- Access to common room
- Access to free laundry facilities
- Complimentary WIFI
Triple Studio Apartment - Queen Bed | King Single Bed
Our spacious open plan Triple Studio Apartments are ideal for the family with a Queen bed plus King Single bed. Each apartment features a fully equipped kitchenette, combined living, dining and sleeping areas, so that you’re afforded all the space and privacy you need to make your stay as comfortable as possible. **All of our apartments are Non Smoking/Vaping for guest comfort**
Triple studio apartments feature:
- Queen and king single sized beds
- Built in wardrobe
- Kitchenette with gas cooktop
- Microwave
- Full Sized fridge
- Combined living & dining area
- TV
- Reverse cycle air-conditioning
- Ensuite bathroom with shower and toilet
- Linen included
- Access to common room
- Access to free laundry facilities
- Complimentary WIFI
Executive Studio Apartment - Queen Bed
Our massive open plan executive studio apartment features a fully equipped kitchenette, huge combined living and dining areas with a Queen sized bed, large lounge sitting area and loft ceilings so that you’re afforded all the space and privacy you need to make your stay as comfortable as possible. The Executive Studio Apartment is also available as a wheel chair accessible apartment. **All of our apartments are Non Smoking/Vaping for guest comfort**
Our executive studio apartment features:
- Queen sized bed
- Kitchenette with gas cooktop
- Microwave
- Full Sized Fridge
- Combined living & dining area with lounge
- Air-conditioning
- Large bathroom with shower and toilet
- Linen included
- Access to common room
- Access to free laundry facilities
- Complimentary WIFI
- Optional wheel chair accessible apartment available which also has a Sofa Bed in the living room.
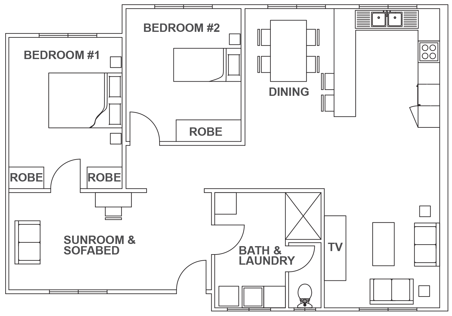
Family Studio Apartment - Queen Bed x 2 | Sofa Bed
Our Family Studio Apartment is a fully furnished two bedroom apartment with a spacious combined living and dining area and a separate sunroom with a sofa bed, full bathroom and laundry complete with washer and clothes rack. **All of our apartments are Non Smoking/Vaping for guest comfort**
The family studio apartment features:
- Main Bedroom with Queen sized bed with built in wardrobe
- Second Bedroom with Queen sized bed with built in wardrobe
- Sunroom with double sofa bed
- Linen included
- Full kitchen with gas cooktop and oven
- Microwave
- Full Sized Fridge
- Large dining area
- Breakfast bar
- Spacious lounge room
- TV
- Large combined bathroom and laundry with shower, toilet, washer and clothes drying rack
- Ducted reverse cycle air-conditioning
- Access to common room
- Complimentary WIFI











































